户型图
合泰嘉悦公馆
| 户型 | 面积 | 布局 |
|---|---|---|
| A1 | 72平 | 三房两厅一卫 |
|
||
| 设计的是竖厅格局,客厅实测3.26米开间,LDKB一体化设计,动静分区,3个卧室分别做到了主卧10.41㎡/次卧7.86㎡/次卧7.09㎡(实测面积,去掉墙体),客厅出3.78㎡的大阳台,U型厨房5.22平,卫生间干湿分离,得房率约73.6%(不含赠送),套内面积53.26m²,正北朝向。 | ||
| 户型 | 面积 | 布局 |
|---|---|---|
| A2 | 81平 | 三房两厅一卫 |
|
||
| 设计的是经典竖厅格局,客厅实测3.25米开间,LDKB一体化设计,三开间朝南,动静分区,3个卧室分别做到了主卧10.16㎡/次卧8.17㎡/次卧7.14㎡(实测面积,去掉墙体),客厅出8.4㎡的大阳台,U型厨房5平,卫生间干湿分离,得房率约73.6%(不含赠送),套内面积59.77m²,正南朝向。 | ||
| 户型 | 面积 | 布局 |
|---|---|---|
| B | 88平 | 三房两厅两卫 |
|
||
| 设计的是经典竖厅格局,客厅实测3.38米开间,LDKB一体化设计,三开间朝南,动静分区,3个卧室分别做到了主卧13.3㎡/次卧7.28㎡/次卧5.4㎡(实测面积,去掉墙体),客厅出8.67㎡的大阳台,U型厨房4.95平,公卫三段式干湿分离,得房率约73.6%(不含赠送),套内面积65.02m²,正南朝向。 | ||
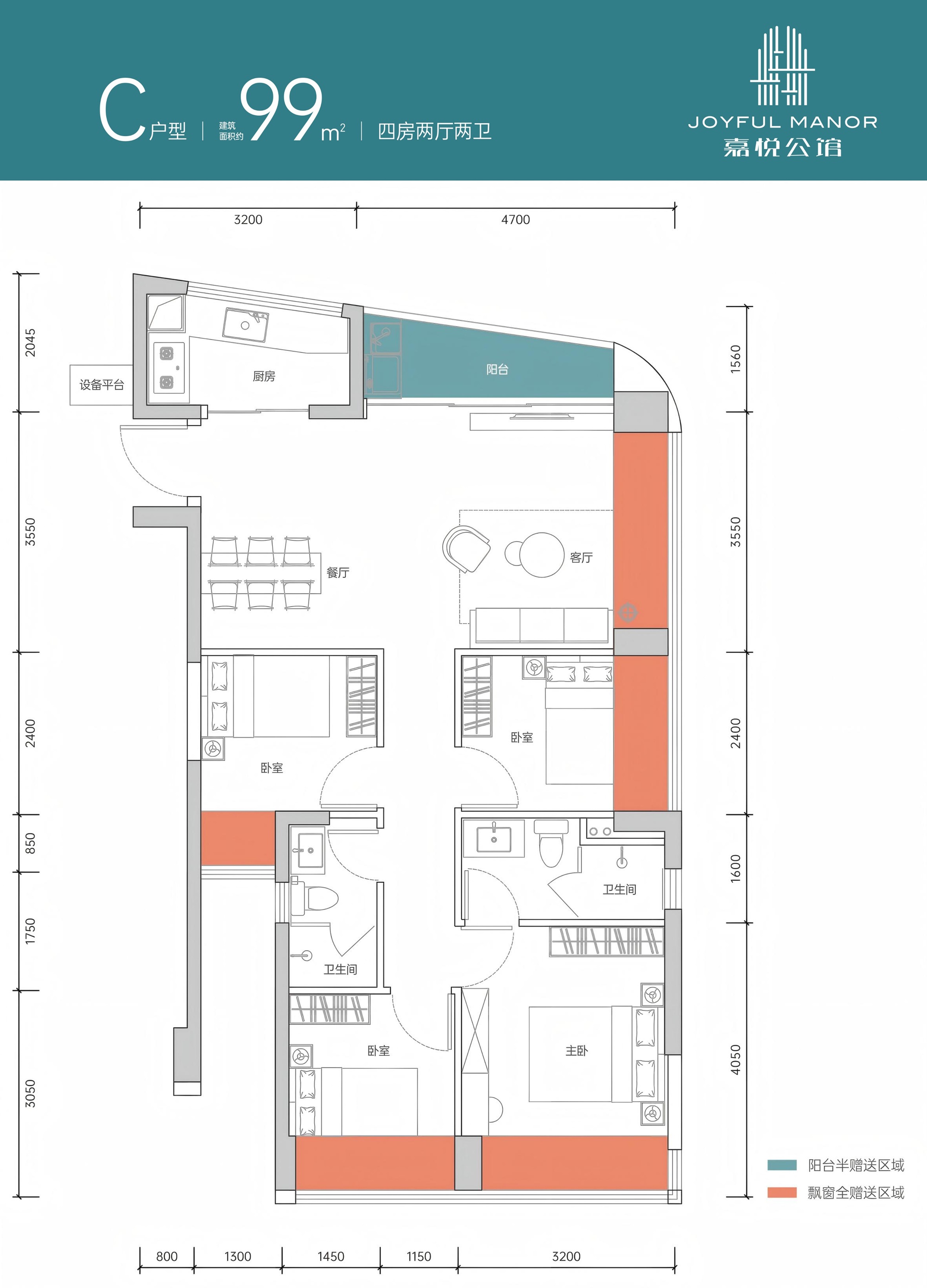
| 户型 | 面积 | 布局 |
|---|---|---|
| C | 99平 | 四房两厅两卫 |
|
||
| 设计的是竖厅南北通透格局,客厅实测3.57米开间,LDKB一体化设计,动静分区,4个卧室分别做到了主卧11.63㎡/次卧6.94㎡/次卧6.55㎡/次卧6.45㎡(实测面积,去掉墙体),客厅出7.3㎡的阳台,U型厨房6.54平,卫生间干湿分离,得房率约73.6%(不含赠送),套内面积73.4m²,阳台主朝北向。 | ||




