深圳土地拍卖信息
公平|公正|公开
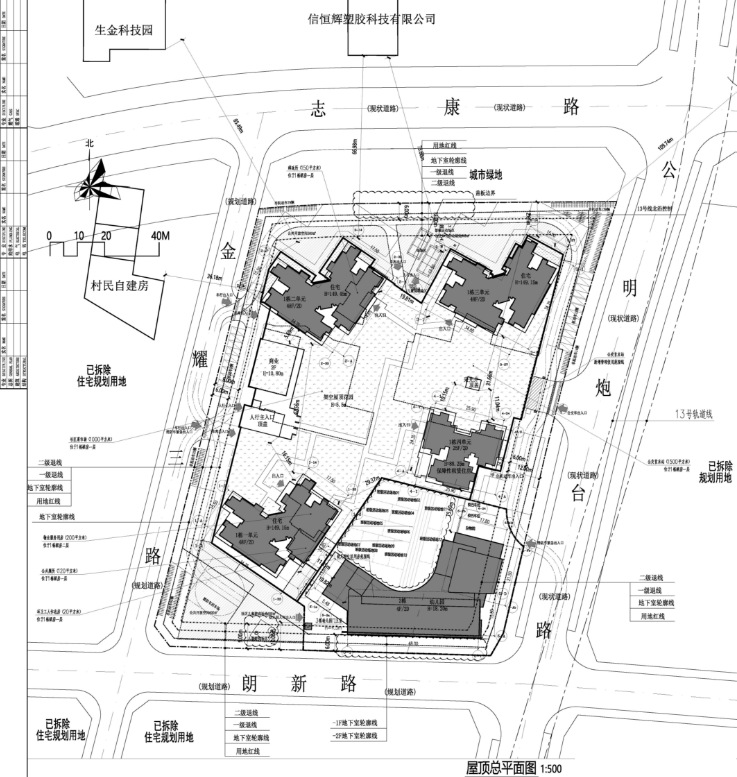
A642-0506
光明区
13700元/㎡
14亿4430万
14亿4430万
楼面均价
起拍价格
成交价格
土地位置
土拍日期
2022年08月04日(第2次土拍)
土地面积
21039.24㎡
建筑面积
105190㎡
土地用途
二类居住用地
土地限价
47200元/㎡
土地溢价
0%
竞得企业
特发
项目名称
土拍介绍
A642-0506

位于光明公明街道A642-0506地块,占地面积21039㎡,毛坯限均价4.72万/㎡,周边都是工厂和农民房,属于光明比较偏的地方,不过旁边是未来13号线的地铁口。
宗地土地面积2.1万平方米,总建面10.52万平方米,挂牌起始价14.43亿元。建成后普通商品住房后,毛坯均价不高于4.72万元/平方米。

免责声明
1、文章图片来源于微信搜索或百度搜索引擎,我方非相关图片的原创作者,也不对相关图片及内容享有任何权利。
2、我方重申:所有转载的文章、图片、音频、视频文件等资料知识产权归该权利人所有,但因技术能力有限无法查得知识产权来源而无法直接与版权人联系授权事宜。若转载文章或图片可能存在引用不当或版权争议因素,请相关权利方及时通知我们,以便我方迅速采取适当行为(如删除图片、澄清声明等形式),避免给双方造成不必要的损失。
3、本宣传资料对项目周边幼儿园、学校等教育资源的介绍旨在提供相关信息,并不意味着我方对就学安排作出承诺。教育资源的名称、办学性质、办学规模、学位设置、开学(班)时间、招生条件、收费标准及招生区域存在调整的可能,应以政府教育主管部门及办学方颁布的政策规定为准。
4、文章中文字和图片之间无必然联系,仅供读者参考。
5、本文所述内容和意见仅供参考,不构成市场交易依据和投资建议。