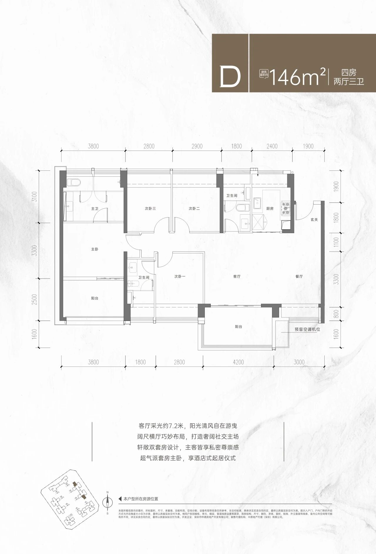
户型图

怀德城德望府