户型图
怀德城德望府
| 户型 | 面积 | 布局 |
|---|---|---|
| B2 | 99-100平 | 三房两厅两卫 |
|
||
| 设计的是经典竖厅格局,客厅3.5米开间,LDKB一体化设计,动静分区,分别做到了主卧16.31㎡/次卧10.36㎡/次卧8.64㎡(包含墙体飘窗),U型厨房,卫生间干湿分离还带1个设备平台,得房率约78.9%(不含赠送),客厅连接次卧出6.2米长的大阳台约11.78㎡,东北或西南朝向。套内面积78.01㎡+赠送面积13.01㎡=实得面积91.02㎡,加上赠送后得房率约92.06㎡。 | ||
| 户型亮点 | ||
|
户型方正,客餐厅一体,U型厨房和双卫三分离等设计极具实用性。最重要的是,每个房间都很大,住起来很舒服。 6.25米长大阳台依旧是一大亮眼,采光与景观视野都很不错,看小区园林。且设置的均为80cm进深的飘窗,综合赠送不少。 |
||
| 户型 | 面积 | 布局 |
|---|---|---|
| C5 | 113平 | 三房两厅两卫 |
|
||
| 设计的是横厅南北通透格局,客餐厅6.4米开间,LDKB一体化设计,四开间朝南,全屋6面飘窗,分别做到了主卧15.93㎡/次卧12.54㎡/次卧10.83㎡/次卧9.31㎡(包含墙体飘窗),U型厨房,公卫三段式干湿分离,得房率约79%(不含赠送),阳台约8.97㎡东南朝向。套内面积89.66㎡+赠送面积20.03㎡=实得面积109.69㎡,加上赠送后得房率约96.7㎡。 | ||
| 户型 | 面积 | 布局 |
|---|---|---|
| C4 | 113-114平 | 四房两厅两卫 |
|
||
| 设计的是竖厅双龙抱珠格局,客厅3.7米开间,LDKB一体化设计,分别做到了主卧15.18㎡/次卧12.6㎡/次卧10.8㎡/次卧9.58㎡(包含墙体飘窗),U型厨房,卫生间干湿分离,得房率约78.9%(不含赠送),阳台约7.77㎡东北或西南向。套内面积89.43㎡+赠送面积13.16㎡=实得面积102.6㎡,加上赠送后得房率约90.52㎡。 | ||
| 户型亮点 | ||
|
LDKB一体化设计+竖厅,让这户型的公区特别通透,布局上也规整,节省了不少过道空间。 主卧套房还配置了独立衣帽间和卫生间,居住体验很不错。 经典的双龙抱珠布局,这种布局将客区设在户型中间,不仅很大程度提升实用率,也保证其他房间的私密性和餐客厅与阳台的通风。 |
||
| 户型 | 面积 | 布局 |
|---|---|---|
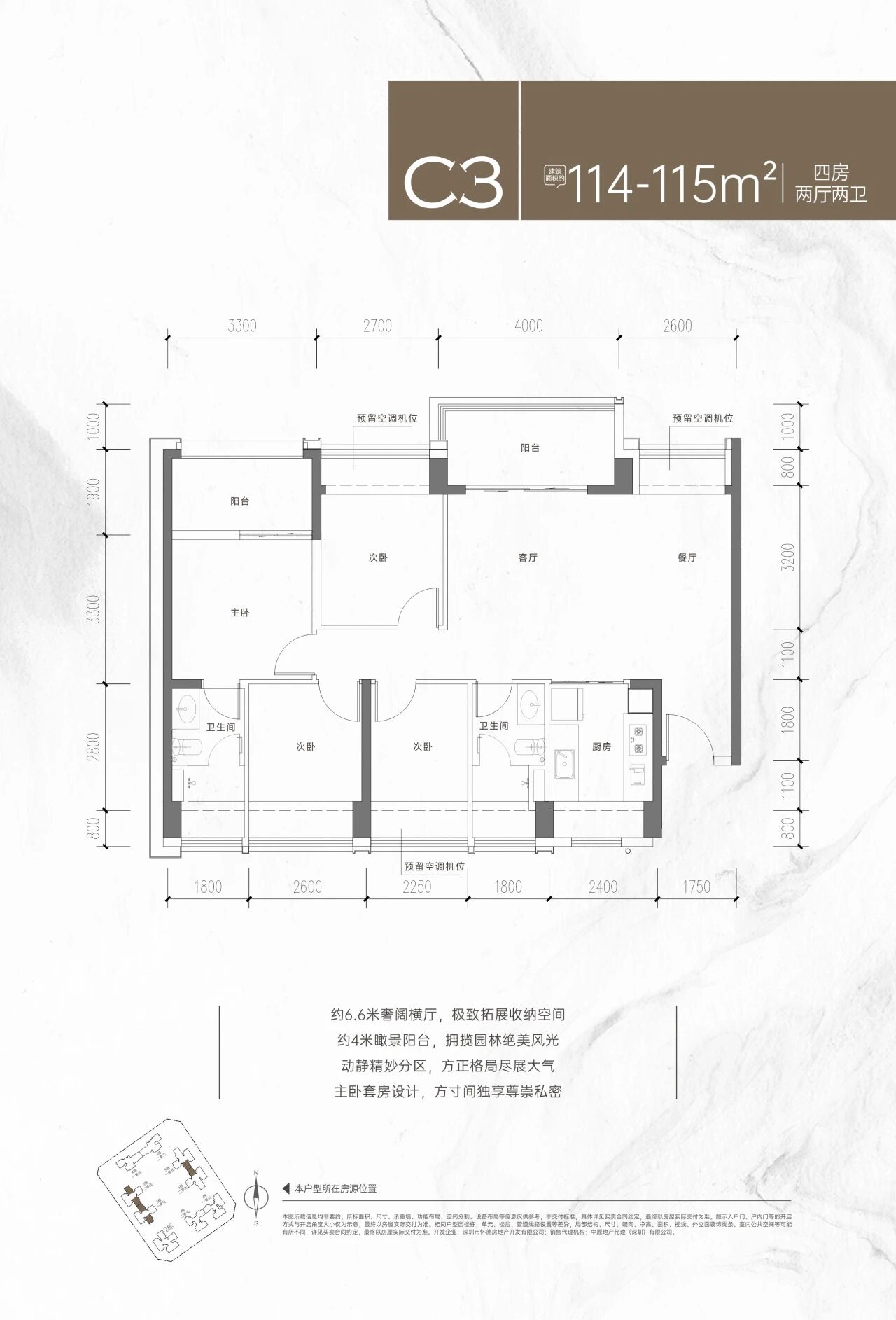
| C3 | 114-115平 | 四房两厅两卫 |
|
||
| 设计的是横厅南北通透格局,客餐厅6.6米开间,LDKB一体化设计,五开间朝南,全屋7面飘窗,分别做到了主卧17.16㎡/次卧10.8㎡/次卧9.36㎡/次卧8.1㎡(包含墙体飘窗),U型厨房,卫生间干湿分离,得房率约78.9%(包含赠送),阳台约7.2㎡主朝东北或西南向。套内面积89.73㎡+赠送面积19.65㎡=实得面积109.38㎡,加上赠送后得房率约96.17㎡。 | ||
| 户型亮点 | ||
|
横厅设计,部分户型采用转角入户设计,整体结构方正,空间利用率比较出色。 主卧面积有14平方,是配备独立阳台、卫生间的套房设计,居住舒适感高,私密性也好。 6.6米横厅拉开了活动区的尺度,房间都有80cm的飘窗,各功能间面积均匀,这个也是比较出彩的点。 |
||
| 户型 | 面积 | 布局 |
|---|---|---|
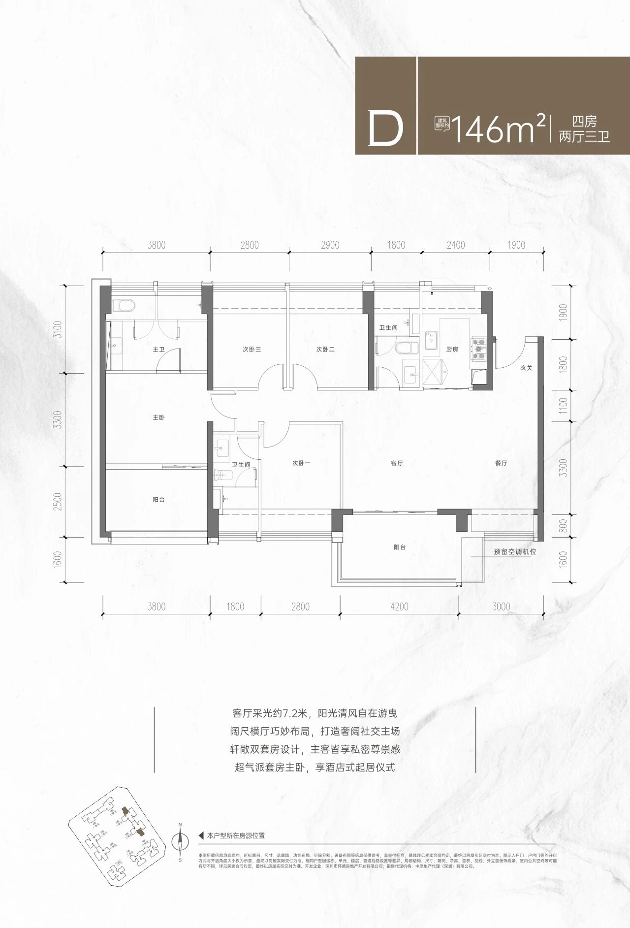
| D | 146平 | 四房两厅三卫 |
|
||
| 设计的是横厅南北通透格局,客餐厅7.2米开间,LDKB一体化设计,五开间朝南,全屋7面飘窗,双套房设计,分别做到了主卧22.04㎡/次卧11.48㎡/次卧10.73㎡/次卧10.36㎡(包含墙体飘窗),U型厨房,卫生间干湿分离,得房率约78.9%(不含赠送),阳台约10.08㎡东南朝向。套内面积114.94㎡+赠送面积23.79㎡=实得面积138.73㎡,加上赠送后得房率约95.23㎡。 | ||
| 户型亮点 | ||
|
横厅格局,有转角入户、双套房、三卫设计。客厅采光面约7.2米,面积尺度更大,适合举办家庭聚会或接待宾客。 特别之处是主卧的卫生间和阳台面积都比较大——像卧室和阳台可以直接打通,卫生间的尺度也完全可放浴缸了。 |
||
| 户型 | 面积 | 布局 |
|---|---|---|
| E1 | 148平 | 四房两厅三卫 |
|
||
| 设计的是竖厅类双龙抱珠格局,客厅3.9米开间,LDKB一体化设计,四开间朝南,双套房设计,分别做到了主卧20.47㎡/次卧13.6㎡/次卧11.53㎡/次卧11.38㎡(包含墙体飘窗),U型厨房,公卫三段式干湿分离,得房率约79%(不含赠送),客厅连接次卧出7.2米长的大阳台约13.68㎡东南朝向。套内面积117.03㎡+赠送面积17.89㎡=实得面积134.92㎡,加上赠送后得房率约91.12㎡。 | ||
| 户型亮点 | ||
|
楼王单位,双龙抱珠格局,和C4户型比,私密区尺度有了进一步拓展。四开间+7.2米观景大阳台是亮点,能看到整个园区景观。 双面采光,通风条件很优越。主卧套房设计,配备了独立衣帽间和卫生间,私密性与舒适性兼备。 |
||
| 户型 | 面积 | 布局 |
|---|---|---|
| F | 199平 | 四房两厅三卫 |
|
||
| 设计的是横厅南北通透格局,客厅7.3米开间大方厅,餐客厅分离化设计,四开间朝南,动静分区,分别做到了主卧23.6㎡/次卧16.89㎡/次卧12.18㎡/次卧11.7㎡(包含墙体飘窗),L型厨房带1个生活阳台,卫生间干湿分离,得房率约79%(不含赠送),长7.3米的大阳台约12.77㎡东南朝向。套内面积157.61㎡+赠送面积28.65㎡=实得面积186.26㎡,加上赠送后得房率约93.41㎡。 | ||
| 户型亮点 | ||
|
大横厅设计,约7.3米的双面采光,整个房间通透明亮,加持双套房和三卫配置。 主卧套房南北对流设计,带独立阳台和U型衣帽间,卫生间里不仅设计双洗手台,空间还放得下浴缸。 楼王单位,采用板楼设计,南北通透,占据小区最优越的位置,拥有无遮挡的园林视野。 |
||




