户型图
华联峦山府
| 户型 | 面积 | 布局 |
|---|---|---|
| A | 94-100平 | 三房两厅两卫 |
|
||
| 设计的是经典竖厅格局,客厅3.6米开间,LDKB一体化设计,三开间朝南,动静分区,分别做到了主卧15.18㎡/次卧10.64㎡/次卧8.58㎡(包含墙体飘窗),二字型厨房还带1个生活阳台,卫生间干湿分离,得房率约77.6-79.4%(不含赠送),东南朝向。套内面积74.6m²+飘窗赠送11.69m²+阳台赠送6m²=实用面积92.29m²,加上赠送后得房率约96.05-98.22%。 | ||
| 户型亮点 | ||
| 刚改友好,LDKB一体化设计,3.6米开间+双阳台,全南向+凸窗,适合三口之家。 | ||
| 户型 | 面积 | 布局 |
|---|---|---|
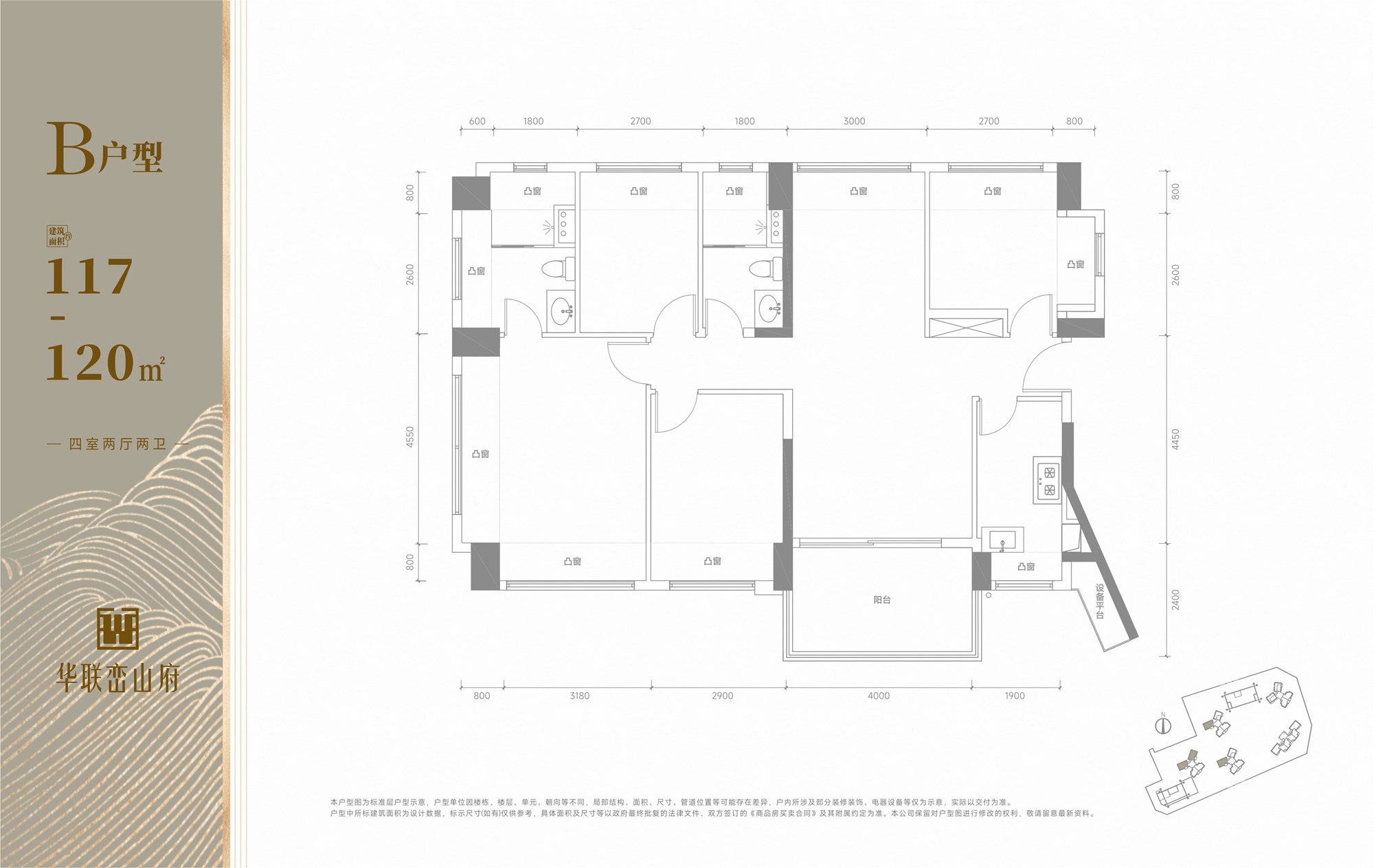
| B | 117-120平 | 四房两厅两卫 |
|
||
| 设计的是竖厅南北通透格局,客厅4米开间,餐客厅分离设计,全屋11面飘窗,分别做到了主卧93.23㎡/次卧12.61㎡/次卧9.18㎡/次卧9.18m²(包含墙体飘窗),L型厨房,卫生间干湿分离,得房率约77.6-79.4%(不含赠送),阳台9.6m²东南朝向。套内面积93.23m²+飘窗赠送22.88m²+阳台赠送4.8m²=实用面积120.91m²,加上赠送后得房率约100.83-102.97%。 | ||
| 户型亮点 | ||
| 改善主力,南北通透+南向三开间,主卧270°景观凸窗,四房设计满足多代同堂或“三孩家庭”。 | ||
| 户型 | 面积 | 布局 |
|---|---|---|
| C | 161平 | 复式 |
|
||
| 设计的是横厅南北通透格局,客餐厅一体化,上下2层,一楼1房2厅1厨1卫,二楼3房1卫设计,阳台东南朝向。 | ||
| 户型亮点 | ||
| 稀缺王牌,新规下少见,首推仅14套。 | ||




