户型图
阳基御龙湾西园
| 户型 | 面积 | 布局 |
|---|---|---|
| 1 | 65平 | 两房两厅一卫 |
|
||
| 设计的是竖厅稀缺的双龙抱珠格局,客厅开间3米,三开间朝南,L型厨房,卫生间分离设计,得房率约73.26%(不含赠送),西南朝向,加上赠送得房率约80%。 | ||
| 户型 | 面积 | 布局 |
|---|---|---|
| 2 | 65平 | 两房两厅一卫 |
|
||
| 设计的是竖厅稀缺的双龙抱珠格局,客厅开间3米,三开间朝南,L型厨房,卫生间分离设计,得房率约73.26%(不含赠送),东南或西北朝向,加上赠送得房率约79%。 | ||
| 户型 | 面积 | 布局 |
|---|---|---|
| 3 | 75平 | 两房两厅一卫 |
|
||
| 设计的是竖厅稀缺的双龙抱珠格局,客厅开间3.4米,U型厨房,卫生间三段式分离设计,得房率约73.26%(不含赠送),东南或西北朝向,加上赠送得房率约80%。 | ||
| 户型 | 面积 | 布局 |
|---|---|---|
| 4 | 75平 | 两房两厅一卫 |
|
||
| 设计的是竖厅稀缺的双龙抱珠格局,客厅开间3.4米,U型厨房,卫生间三段式分离设计,得房率约73.26%(不含赠送),东南或西北朝向,加上赠送得房率约80%。 | ||
| 户型 | 面积 | 布局 |
|---|---|---|
| 5 | 83平 | 三房两厅两卫 |
|
||
| 设计的是竖厅格局,客厅开间3.3米,LDKB一体化设计,三开间朝南,U型厨房,公卫三段式分离设计,得房率约79.25%(不含赠送),东南或西南朝向,加上赠送得房率约90%。 | ||
| 户型 | 面积 | 布局 |
|---|---|---|
| 6 | 83平 | 三房两厅两卫 |
|
||
| 设计的是竖厅格局,客厅开间3.3米,LDKB一体化设计,三开间朝南,U型厨房,公卫三段式分离设计,得房率约79.25%(不含赠送),东南或西南朝向,加上赠送得房率约89%。 | ||
| 户型 | 面积 | 布局 |
|---|---|---|
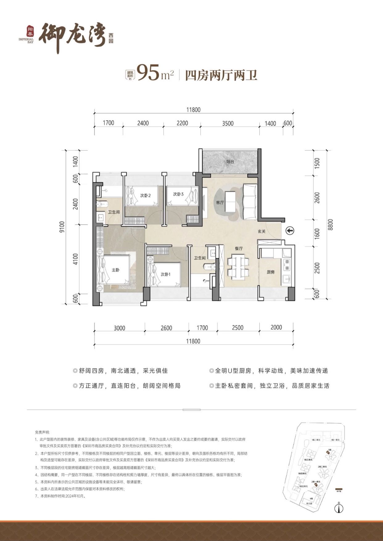
| 7 | 95平 | 四房两厅两卫 |
|
||
| 设计的是竖厅南北通透格局,客厅开间3.5米,五开间朝南,U型厨房,公卫三段式分离设计,得房率约79.25%(不含赠送),阳台主朝东北向,加上赠送得房率约93%。 | ||
| 户型 | 面积 | 布局 |
|---|---|---|
| 8 | 95平 | 四房两厅两卫 |
|
||
| 设计的是经典竖厅格局,客厅开间3.5米,LDKB一体化设计,三开间朝南,U型厨房,卫生间干湿分离设计,得房率约79.25%(不含赠送),东南或西南朝向,加上赠送得房率约88%。 | ||
| 户型 | 面积 | 布局 |
|---|---|---|
| 9 | 135平 | 四房两厅两卫 |
|
||
| 设计的是横厅南北通透格局,客餐厅开间6.8米,LDKB一体化设计,四开间朝南,U型厨房,公卫三段式分离设计,得房率约79.25%(不含赠送),阳台主朝东南或西南向,加上赠送得房率约90%。 | ||




