户型图
财富城弘德苑
| 户型 | 面积 | 布局 |
|---|---|---|
| C | 75平 | 三房两厅一卫 |
|
||
| 设计的是竖厅格局,客厅3.35米开间,3个卧室分别是3.1/2.85/2.25米的宽度,L型厨房,带1个小生活阳台,卫生间三段式分离设计,得房率:91.52%(包含赠送),西南及西北朝向。 | ||
| 户型 | 面积 | 布局 |
|---|---|---|
| A | 89平 | 三房两厅两卫 |
|
||
| 设计的是经典竖厅格局,客厅3.4米开间,3个卧室分别是3.3/2.8/2.5米的宽度,L型厨房,带1个小生活阳台,得房率:86.13%(包含赠送),西南、东南及东北朝向。 | ||
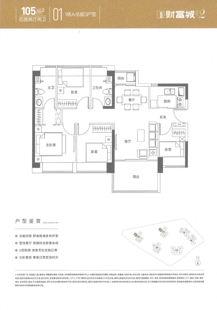
| 户型 | 面积 | 布局 |
|---|---|---|
| D | 105平 | 四房两厅两卫 |
|
||
| 设计的是竖厅南北通透格局,客厅3.5米开间,全屋飘窗双阳台设计,4个卧室分别是3.25/2.85/2.6/2.1米的宽度,U型厨房,得房率:86.47%(包含赠送),阳台主朝西南向。 | ||
| 户型 | 面积 | 布局 |
|---|---|---|
| E | 120平 | 四房两厅两卫 |
|
||
| 设计的是竖厅南北通透格局,双阳台设计,客厅3.7米开间,4个卧室分别是3.2/3.2/2.75/2.75米的宽度,U型厨房,得房率:88.36%(包含赠送),阳台主朝东南、西北、东北向。 | ||
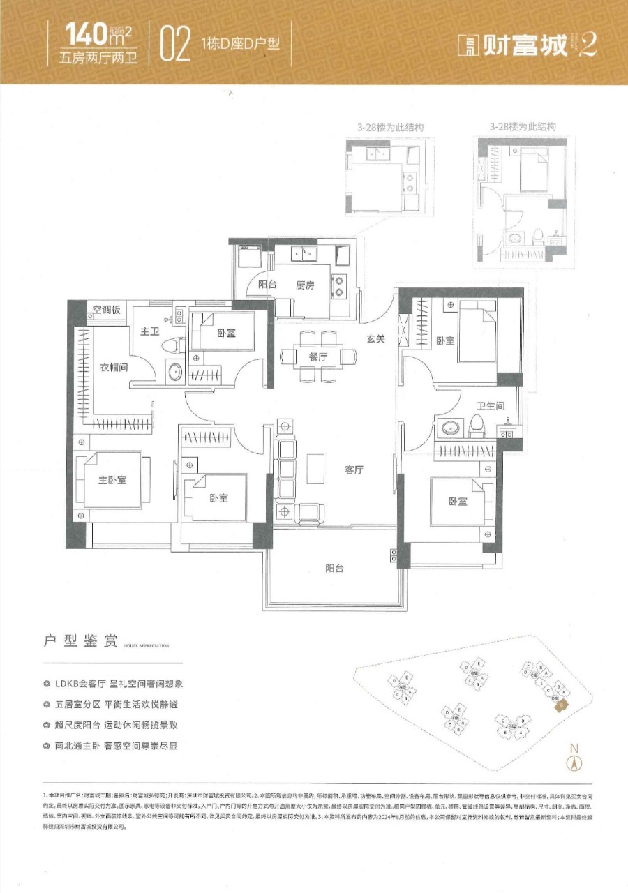
| 户型 | 面积 | 布局 |
|---|---|---|
| D | 140平 | 五房两厅两卫 |
|
||
| 设计的是竖厅双龙抱珠格局,客厅4米开间,四开间朝南,4个卧室分别是3.55/2.95/2.95/2.7米的宽度,L型厨房,带1个小生活阳台,西南、东南朝向。 | ||




