户型图
深业云筑
| 户型 | 面积 | 布局 |
|---|---|---|
| E2 | 89平 | 三房两厅一卫 |
|
||
| 设计的是竖厅格局,客厅3.6米开间,LDKB一体化设计,3个卧室分别做到了3.2米/3米/2.8米的宽度,L型厨房还带1个小生活阳台,卫生间三段式分离,得房率:79.89%(不含赠送),阳台有东南/西南或正南朝向。 | ||
| 户型 | 面积 | 布局 |
|---|---|---|
| E3 | 89平 | 三房两厅一卫 |
|
||
| 设计的是竖厅格局,客厅3.6米开间,LDKB一体化设计,3个卧室分别做到了3.2米/3米/2.8米的宽度,二字型厨房还带1个小生活阳台,卫生间三段式分离,得房率:79.89%(不含赠送),阳台都是西南朝向。 | ||
| 户型 | 面积 | 布局 |
|---|---|---|
| C2 | 112平 | 四房两厅两卫 |
|
||
| 设计的是竖厅南北通透格局,客厅3.9米开间,餐客厅一体化设计,4个卧室分别做到了3.4米/3米/2.9米/2.4米的宽度,U型厨房,卫生间干湿分离,得房率:79.89%(不含赠送),阳台主朝东南向。 | ||
| 户型 | 面积 | 布局 |
|---|---|---|
| B1 | 128平 | 四房两厅两卫 |
|
||
| 设计的是竖厅格局,南北通透双阳台,客厅4.2米开间,餐客厅一体化设计,4个卧室分别做到了3.6米/3米/3米/3米的宽度,U型厨房,卫生间干湿分离,得房率:79.71%(不含赠送),大阳台主朝正南向。 | ||
| 户型 | 面积 | 布局 |
|---|---|---|
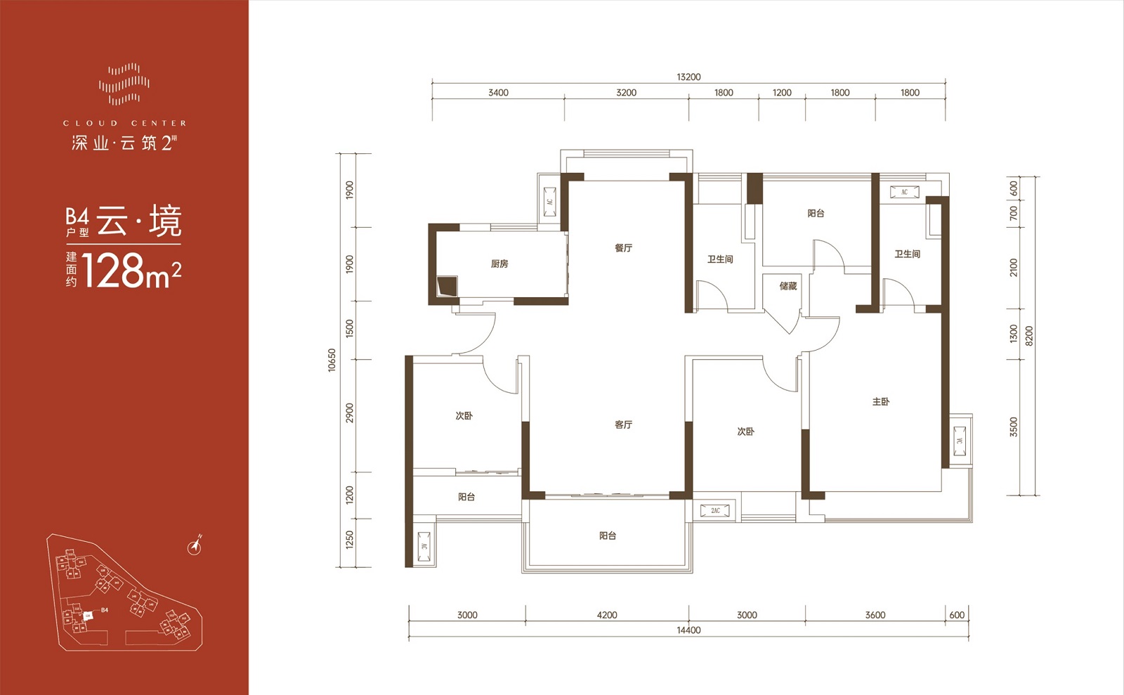
| B4 | 128平 | 四房两厅两卫 |
|
||
| 设计的是竖厅南北通透格局,客厅4.2米开间,餐客厅一体化设计,4个卧室分别做到了3.6米/3米/3米/3米的宽度,U型厨房,卫生间干湿分离,得房率:80.14%(不含赠送),阳台主朝东南向。 | ||
| 户型 | 面积 | 布局 |
|---|---|---|
| A1 | 143平 | 五房两厅两卫 |
|
||
| 设计的是竖厅格局,南北通透双阳台,客厅4.5米开间,餐客厅一体化设计,5个卧室分别做到了3.7米/3.2米/2.9米/2.9米/2.5米的宽度,U型厨房,卫生间干湿分离,得房率:80.4%(不含赠送),阳台主朝正南向。 | ||




